Naar de inhoud springen
architect Sébastien Tistaert

architect Sébastien Tistaert

  • Over A26A
  • Projecten
  • Freelance architect CV
  • Contact
Druk op enter om te zoeken
  • Houtskeletbouw
  • Nieuwbouw
  • Renovatie
Renovatie

Appartement N&R

Renovatie

Woning Haasrode

Renovatie

Woning Leefdaal

Renovatie

Woning DOV

Renovatie

Woning Holsbeek

Renovatie

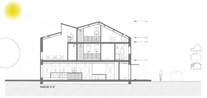
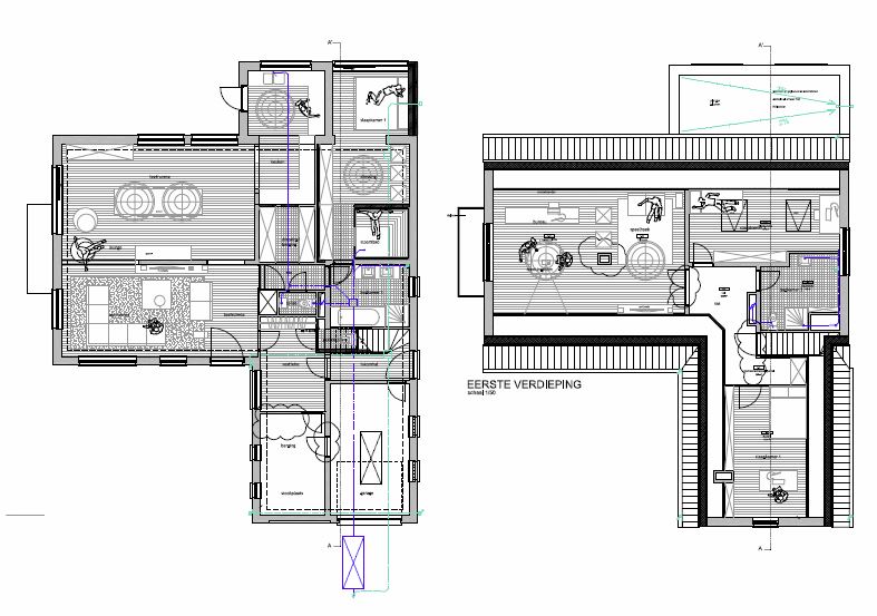
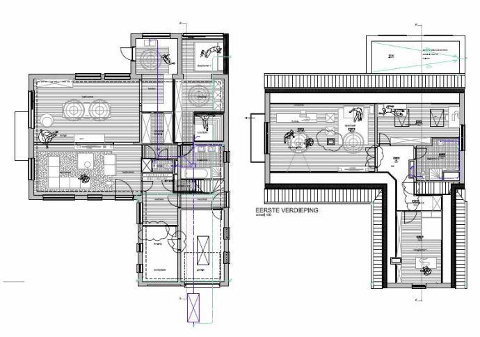
Paviljoenwoning Vertommensberg

Renovatie

WONING LFJ

Pagina navigatie

  • Vorige
  • 1
  • 2
Blog op WordPress.com.
    • architect Sébastien Tistaert
    • Aanmelden
    • Inloggen
    • Deze inhoud rapporteren
    • Beheer abonnementen