Naar de inhoud springen
architect Sébastien Tistaert
Menu
Hoofdmenu
Over A26A
Projecten
Freelance architect CV
Contact
Zoeken naar:
Druk op enter om te zoeken
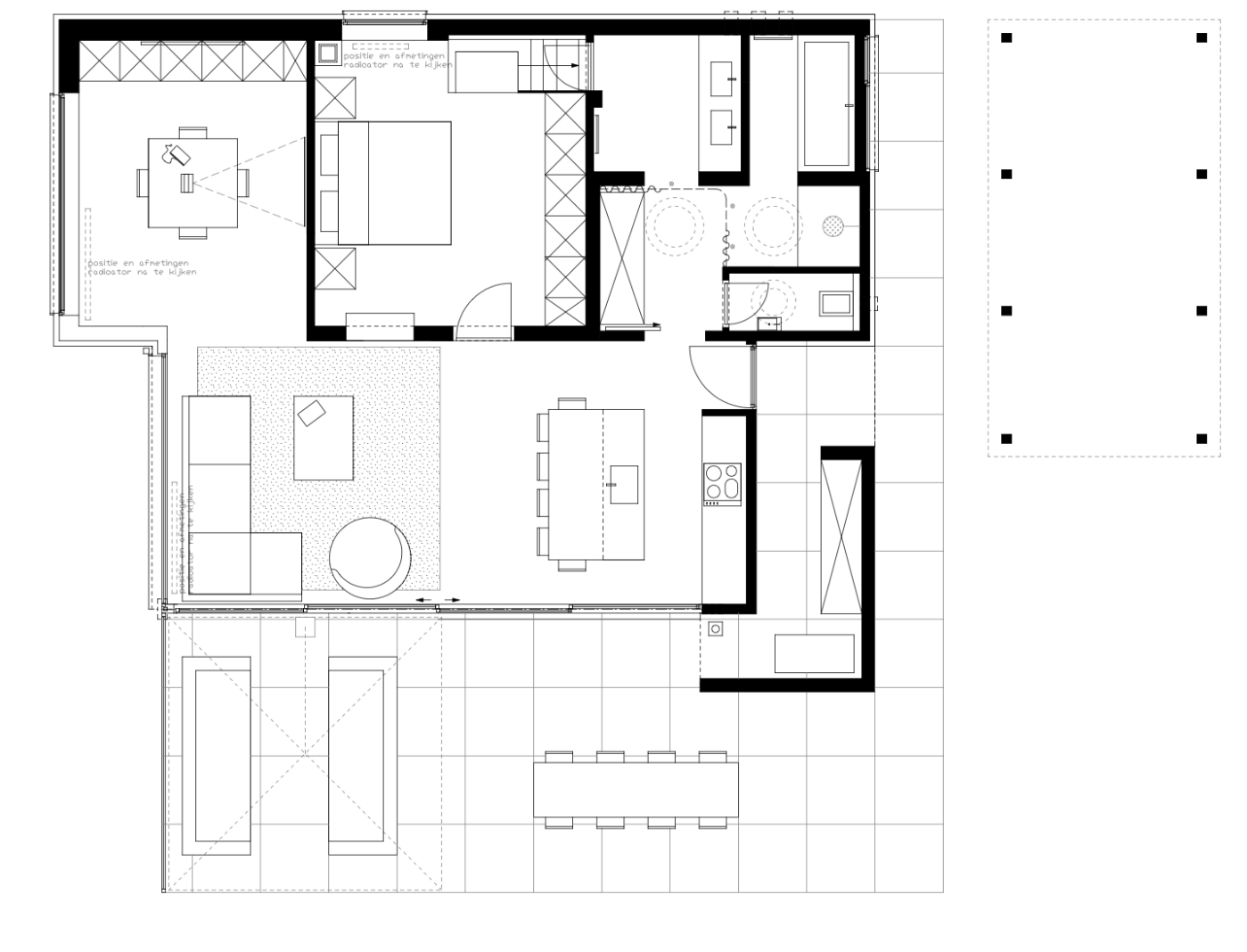
Renovatie
Paviljoenwoning Vertommensberg
Gerelateerd
Gepost door:
A26A
Architect Sébastien Tistaert
Berichtnavigatie
Vorige project
Vorige project
Nieuwbouw
Woning T&A
Volgende project
Volgende project
Renovatie
Woning Holsbeek
Plaats een reactie
Reactie annuleren
Δ
Terug naar boven
Reactie
architect Sébastien Tistaert
Aanmelden
Inloggen
Korte link kopiëren
Deze inhoud rapporteren
Beheer abonnementen
Reacties laden....
Laat een reactie achter...
E-mail (Vereist)
Naam (Vereist)
Site